112 Aneta Biała
thorities have turned their attention to sustainable develop-
ment, emphasizing environmental protection and creating
additional green areas. In 2005, Montreal adopted its rst
Sustainable Development Strategic Plan, which represents
a collective commitment to making sustainability the foun-
dation for the city’s future development. One of the plan’s
objectives was to protect biodiversity, natural habitats, and
green spaces, including increasing the area of protected nat-
ural habitats to 8% of the total area of the island under the
city’s jurisdiction (City of Montreal 2008). With its unique
topography and diverse landscape, Montreal began to regain
its reputation as a city where urban greenery harmoniously
coexists with development. Parks, gardens, and riverside
promenades create picturesque landscapes, attracting resi-
dents to use green spaces. Currently, the City of Montreal
plays a signicant role in promoting biodiversity initiatives
internationally (City of Montreal 2008).
In the research history of cities, the analysis of urban en-
vironments often remains overshadowed (Dagenais 2008).
Most scientists focused primarily on studying natural eco-
systems rather than the human environment. Cities were
con sidered less signicant in scientic research because
re searchers were primarily focused on eorts to halt envi-
ronmental degradation and condemn the excessive exploita-
tion of natural resources in the name of market economy.
In their eyes, cities were seen as enemies of nature, places
that harmed the surrounding environment. Although today
the relationships between social and natural environments
are the subject of intensive research by environmental his-
torians, studies on cities remain relatively neglected. In re-
cent years, ideas related to how people interact with their
surrounding nature have developed and extended beyond
activist and political aspects. Research on the history of
cities from an environmental perspective now requires an
analysis of the relationships between people and natural el-
ements, taking into account the dynamic changes occurring
on both sides of this equation. As historian Geneviève Mas-
sard-Guilbaud (Dagenais 2008) explains, the environmen-
tal approach to history rejects the concept that humans are
external observers of nature, instead accepting the idea of
their integral inclusion in the biosphere, from social units to
entire ecosystems.
Scaling space through greenery modelling
in selected examples
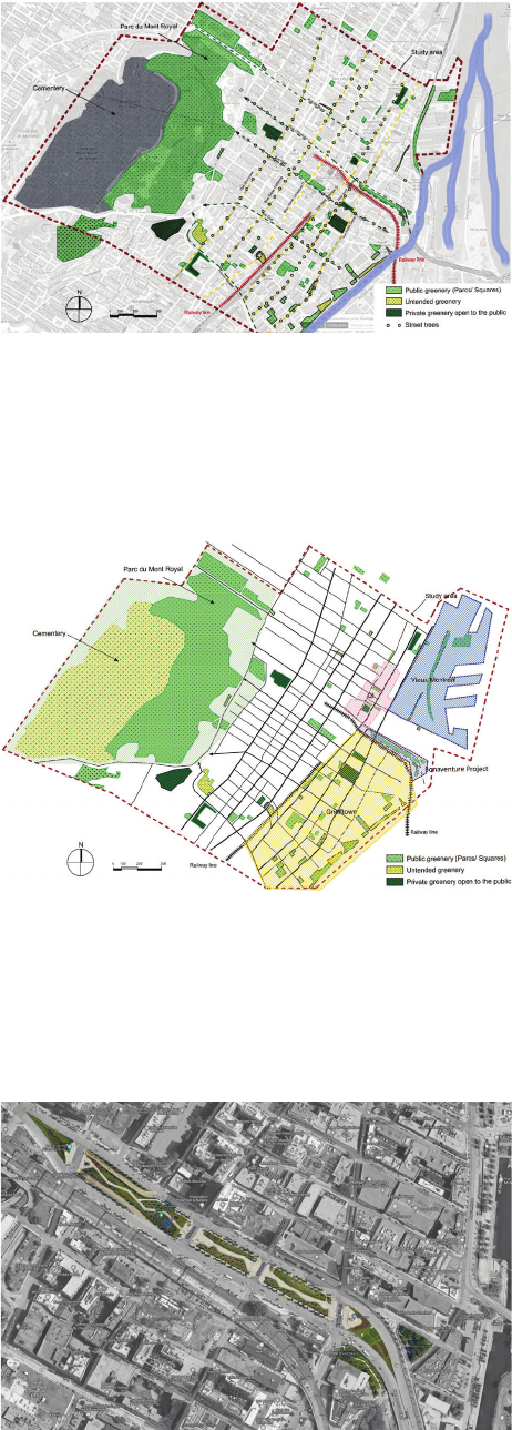
The urban layout of downtown Montreal is character-
ized by a grid of streets running perpendicular or parallel to
Mount Royal Park, creating a regular pattern with geometric
designs. This urban structure is partly inspired by the moun-
tain, located to the west of downtown, which is a dominant
feature of the city’s landscape (Fig. 3). Its presence not only
provides a picturesque backdrop but also inuences the orga-
nization of the urban space. The central area of Montreal fea-
tures a unique urban layout that has evolved over the years.
It is centered around two main axes – Rue Sainte-Catherine
and Rue Sherbrooke (Lord 2016) – serving as the commer-
cial, cultural, and business hub of the city. Rue Sainte-Cath-
erine, one of the main shopping thoroughfares, serves as the
primary east-west axis, oering numerous shops, boutiques,
such as playground equipment, picnic tables, pavilions, etc.,
emphasizing the change in perception of these green spaces
as functional recreational centres rather than merely aesthetic
natural havens (Dagenais 2008).
Since the establishment of the settlement, Mount Royal
has played an important role for its inhabitants, who often
went there for picnics or to enjoy the scenery (Debarbieux
1998). In the 1870s, eorts began to shape the area to meet
the social expectations of that time. It was then decided to
create two cemeteries and a public park on the mountain’s
grounds. This was aimed at preserving the natural heritage
but also providing residents with a place for rest and recre-
ation. Frederick Law Olmsted, a renowned landscape archi-
tect and the creator of Central Park in New York, was ap-
pointed to design this area (Debarbieux 1998). His creative
approach to park planning facilitated the harmonious inte-
gration of the mountain terrain into the urban fabric, while
emphasizing its uniqueness. Olmsted, staying true to his
ethical and aesthetic principles, adapted the concept of En-
glish landscape to the specics of the American context. He
introduced articial elements, while striving to make them
almost invisible in the natural environment. This rst en-
counter with diverse topography in his career prompted him
to reject the idea of a traditional park in favour of revealing
the “genius loci” – the characteristic spirit of that particular
place (Debarbieux 1998).
The increase in the city’s population necessitated the in-
cor poration of green areas into central city areas, providing
re sidents with access to parks and recreational areas. In
the post-war period, the phenomenon of suburbanization
emerged, where residents moved to the suburbs in search
of more space and tranquility. As part of this process, urban
greenery became a key element of spatial planning. The cre-
ation of new neighbourhoods involved the consideration of
green spaces, parks, and promenades to maintain a balance
between urban elements and the natural landscape. However,
due to intense and somewhat uncontrolled city development
between 1986 and 1994, half of the forests were built upon,
and between 1994 and 2001, another 750 ha of greenery
were lost (Oljemark 2002), ultimately losing 18% of green-
ery by 2005 (Pham et al. 2011). The city’s policy at the time
did not sit well with the residents, who placed more impor-
tance on maintaining existing green areas and
creating new
recreational spaces in the city. The inuence of residents on
the decision of city authorities regarding green areas can
be exerted through various mechanisms, including partic-
ipation in public consultations, petitions, actions of social
groups and non-governmental organization (NGO), and en-
gagement in electoral processes (Burstein 2003). Residents
often engage in active actions to express their opinions and
demands regarding the protection of green areas and the
development of recreational spaces in their area. This high-
lights the signicant role of society in shaping municipal
policies concerning the natural environment and recreation,
as well as the need for active dialogue between residents
and authorities in the decision-making process regarding
public spaces.
In the face of challenges related to overcrowding and
main taining quality of life, pressure from public opinion re-
pre sented by the Green Coalition on green issues, city au-